Seltene Gelegenheit! Großzügige 84m2 3-Zimmer Wohnung in Traumlage von Lauingen!
Objektart
Adresse
Objektdaten
Informationen
Ausstattung
Details
Hier erwartet Sie die derzeitig einmalige Gelegenheit eine wunderschöne Eigentumswohnung im Herzen von Lauingen a. d. Donau zu erwerben. Egal ob Familie, Pärchen oder eventuell eine alleinerziehende Person mit einem Kind, der durchdachte Schnitt macht aus dieser ca. 84 m2 großen Wohnung ein wahres Raumwunder!
Die Wohnung eignet sich hervorragend für Kapitalanleger, da die Wohnung derzeit solvent vermietet ist, selbstverständlich wäre aber auch eine Eigennutzung möglich. Das Preis-Leistungs-Verhältnis ist unschlagbar, hier finanziert sich ihre Altersvorsorge quasi fast von selber! Das absolute Highlight ist jedoch der extrem zentral aber dennoch ruhig gelegene Standort!
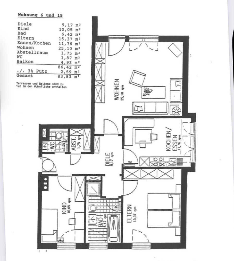
Die im 1. Obergeschoss befindliche Wohnung ist intelligent und effizient aufgeteilt. Nach Zutritt findet sich eine zentrale Diele, die gleichzeitig einen kleinen Garderobenbereich bietet. Es findet sich ein Gäste-WC sowie eine praktische Vorrats- und Abstellkammer. Weiterhin findet sich ein helles und geräumiges Kinderzimmer. Auch ein Tageslichtbadezimmer ist vorhanden, dieses ist mit einer Dusche, einer Badewanne und einem WC ausgestattet. Das Elternschlafzimmer punktet mit ausreichend Platz für ein großes Boxspring Bett, aber auch der große Kleiderschrank findet hier genügend Raum. Die Küche punktet ebenfalls mit genügend Raum für eine Einbauküche, sowie der Unterbringung einer großzügigen Essecke, an der alle Familienmitglieder ausreichend Platz finden. Das Wohnzimmer zeigt sich durch eine große Fensterfront nicht nur extrem lichtdurchflutet, es bietet auch direkten Zugang zum davorliegenden Sonnenbalkon. Diesen werden Sie in den warmen Sommermonaten sehr schnell zu schätzen wissen, und hier ihren Rückzugsort nach getaner Arbeit finden.
Abgerundet wird das Angebot durch einen dazugehörigen und abschließbaren Kellerraum, sowie einem Tiefgaragenstellplatz für ihr Fahrzeug. Weitere Stellplätze finden sich in direkter Umgebung auf teils öffentlichen Parkflächen. Die moderne und gepflegte Wohnanlage bietet natürlich auch die üblichen Wirtschaftsräume, wie Wäscheraum und Fahrradkeller.
Die 84m2 große Wohnung zeigt sich in einem tadellosen und wahnsinnig gepflegten Zustand. Boden- und Wandbeläge wurden immer wieder turnusgemäß renoviert. Das Mehrfamilienhaus wird durch einen Hausmeister gepflegt und durch eine professionelle Hausverwaltung betreut.
Die Wohnung eignet sich zum Selbstbezug, bietet aber auch weiterhin als Kapitalanlage eine Top-Rendite. Die monatlichen Nebenkosten (Hausgeld komplett) belaufen sich auf ca. 368€, hiervon entfallen ca. 82€ auf die monatlichen Rücklagen für Instandhaltung. 248€ wäre der Anteil der umlagefähigen, 38€ wäre der Anteil der nicht umlagefähigen NK nach Stand der Abrechnung für 2025 und dem Wirtschaftsplan für 2026.
Geographisch liegt Lauingen perfekt zwischen den Großstädten Stuttgart, München, Augsburg, Ulm und Nürnberg. Die nächsten Autobahnanschlüsse Zusmarshausen (A 8), Günzburg oder Giengen Brenz (A 7) sind lediglich 20-30 km entfernt. Die Flughäfen München oder Stuttgart sind in einer Stunde mit dem Auto erreichbar, ebenso liegt die Bahnstrecke Ulm Regensburg direkt vor der Tür. Viele bekannte große Arbeitgeber wie Deutz-Fahr, Bosch, Grünbeck… sind nur einige Autominuten entfernt. In direkter Umgebung findet sich eine die Bushaltestelle, ein Kindergarten, ein Allgemeinarzt sowie zahlreiche Discounter und Einkaufsmöglichkeiten. Einige Schulen, der Bahnhof wie auch die Innenstadt sind in wenigen Minuten fußläufig zu erreichen.
Informationen zum Erwerb
Uns ist es wichtig, Ihnen baldmöglichst alle Informationen zur Verfügung zu stellen.
Haben Sie noch den einen oder anderen offen Punkt, den Sie klären möchten?
Rufen Sie uns einfach an!
Unser Team steht Ihnen unter der Tel. 0172-8115143 gerne zur Verfügung. Das gilt selbstverständlich auch für die Vereinbarung eines Besichtigungstermins.
Wir freuen uns, von Ihnen zu hören.
Die Angaben zum Objekt stammen vom Verkäufer. Eine Haftung für deren Richtigkeit können wir nicht übernehmen.
Mit freundlichen Grüßen
Immobilien mit Niveau
Energieausweis (Verbrauchsausweis)
114,60 kWh / (m²*a) Energieverbrauchskennwert
114,60 kWh / (m²*a) Energieverbrauchskennwert
114,60 kWh / (m²*a) Energieverbrauchskennwert
Weitere Informationen
| Befeuerung | Öl |
| Energieverbrauch für Warmwasser | enthalten |
| Energieausweis Baujahr | 1995 |
| Heizung | Zentralheizung |
Ich bin damit einverstanden, dass mir Karten von Google angezeigt werden. Es gelten die Datenschutzbedingungen von Google (https://policies.google.com/privacy).
Ich bin einverstanden